— Properties — Tērbatas Dārzs, Tērbatas Street 78A, Riga, Unit 1, 135m²
Tērbatas Dārzs, Tērbatas Street 78A, Riga, Unit 1, 135m²
for lease
2025 € / per Month

Total area
135 m²
Asking price
15 € / m²
Price
2025 € / per month
Property type
retail
Deal type
lease
Overview
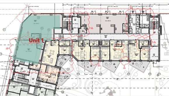
Tērbatas Dārzs is a new and modern residential quarter in the center of Riga, between Tērbatas and Krišjāņa Barona Streets, locating you right in the centre of everything. Corner commercial premises offering excellent visibility thanks to large façade windows. The space is delivered in shell & core condition, providing flexibility for fit-out and concept development. Its prominent corner position enhances exposure and customer flow.
Specifications
- Total area: approx. 135 m²
- Elevated area: 48 m² (approx. four steps up)
- Possibility to reduce area to 87 m²
- Condition: Shell & core
- Water and sewerage connection points available
- Electricity connection point available
Key Features
- Prime corner location within the building
- Large façade windows ensuring high visibility and natural light
- Flexible sizing options
- Terrace or outdoor table placement possible, subject to city approval
Please contact us for further information or to arrange a viewing.

Tērbatas iela 78A, Riga, Latvia
Open in Google Maps
Ilze Brazeviča
Landlord Leasing and Development Manager | Advisory & Transactions
ilze.brazevica@cpbgroup.eu+371 29279397connect


